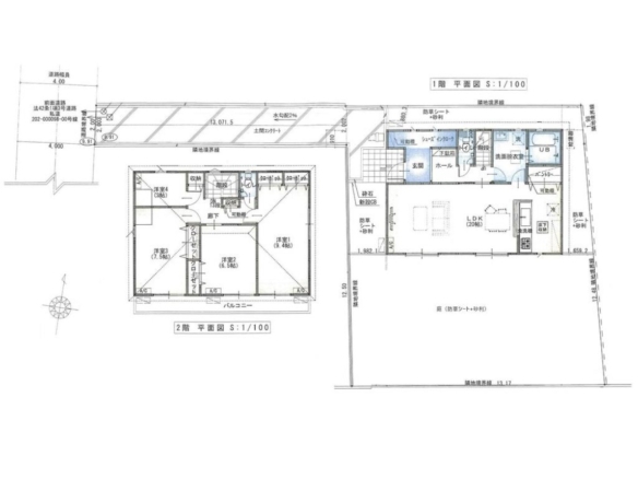
新築戸建 市川市 大洲1丁目 3SLDK 7,499万円
  • Agent License: 宅地建物取引士
  • Service Areas: JAPAN

Property Types

  • 35% 中古戸建
  • 33% 中古マンション
  • 31% 新築戸建
  • 35% Other

Property Status

  • 91% 公開中
  • 9% 申込あり

Property Cities

  • 53% 船橋市
  • 21% 市川市
  • 14% 八千代市
  • 35% Other

About Admin

言語: 日本語

並び替え:

1 レビュー

並び順 上から:
Leave a Review
  • thumb

    EQaEPmQmGVBrpIOG

    UQpHOZbTsTnnCLHtlOIZXm

Leave a Review